The Orangerie
The Orangerie
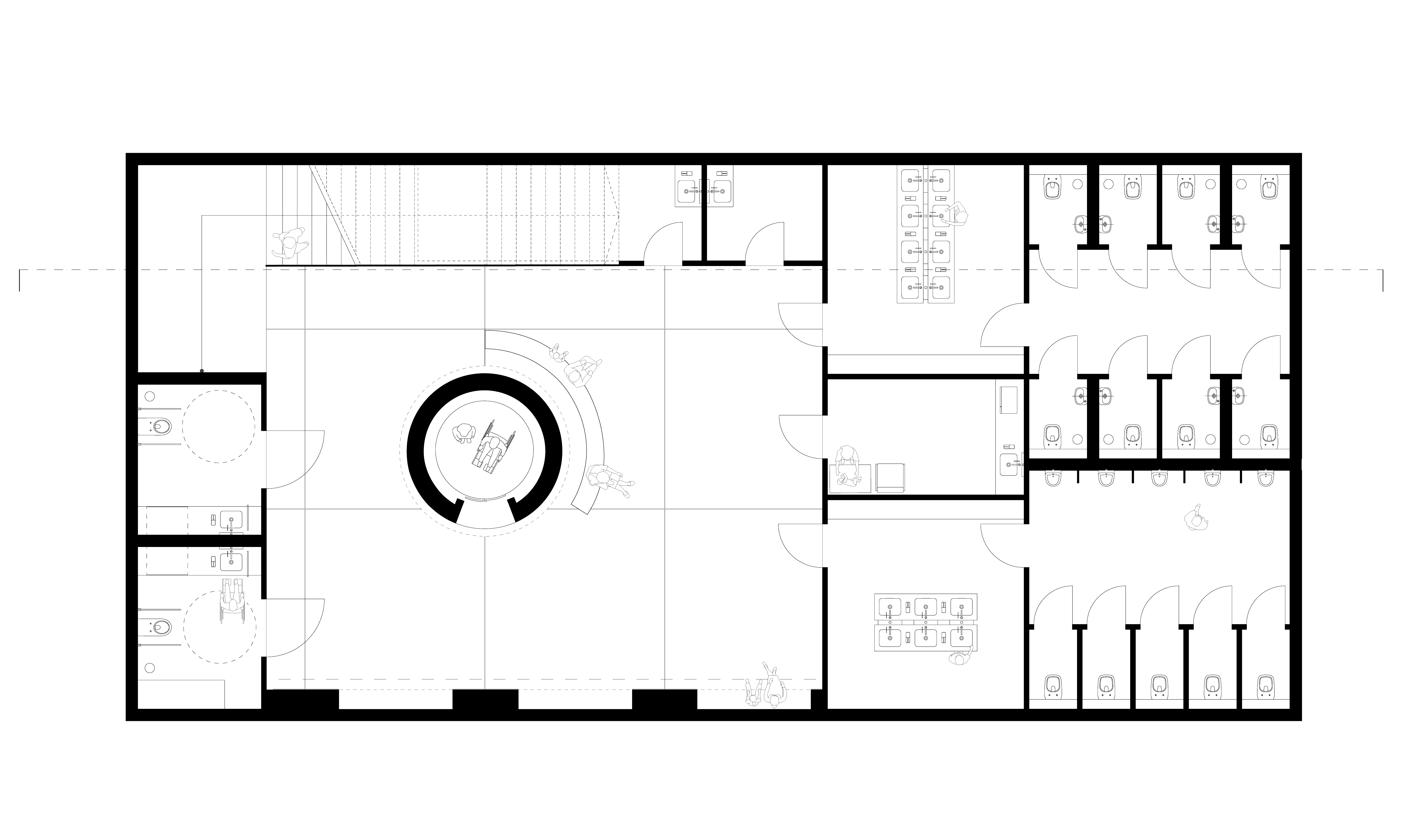
Public toilet Geberit competitoin
Public toilet Geberit competitoin
International competition KOŁO
Awarded
Best Interior Design
Honorable mention
International competition KOŁO
Awarded
Best Interior Design
Honorable mention


The design includes an independent pavilion structure and a setback from the eastern wall of the risalit and the northern façade. The connection between the two buildings is achieved through one of the arcade blende, which does not interfere with the perception of the façade. For the pavilion, a modular furniture system has been designed for both indoor and outdoor use.
Located in such close proximity to the Orangerie building, the designed pavilion, through its transparency, does not obstruct the view of the historic northern façade, preserving its visibility. The pavilion serves as a connector between the garden and the Orangerie, blurring the boundary between interior and exterior. Its form references garden architecture. The compositional grid and height of the pavilion derive from the geometry of the Orangerie building its façade continuity and plan. The arch forming the northern arcade has been spatially developed. By rotating it around its vertical axis of symmetry, sculptural forms were created, which serve a structural function as they support the ceiling. This design ensures an open character for the pavilion’s interior, allowing for fluid communication and flexible arrangement of its space.
The design includes an independent pavilion structure and a setback from the eastern wall of the risalit and the northern façade. The connection between the two buildings is achieved through one of the arcade blende, which does not interfere with the perception of the façade. For the pavilion, a modular furniture system has been designed for both indoor and outdoor use.
Located in such close proximity to the Orangerie building, the designed pavilion, through its transparency, does not obstruct the view of the historic northern façade, preserving its visibility. The pavilion serves as a connector between the garden and the Orangerie, blurring the boundary between interior and exterior. Its form references garden architecture. The compositional grid and height of the pavilion derive from the geometry of the Orangerie building its façade continuity and plan. The arch forming the northern arcade has been spatially developed. By rotating it around its vertical axis of symmetry, sculptural forms were created, which serve a structural function as they support the ceiling. This design ensures an open character for the pavilion’s interior, allowing for fluid communication and flexible arrangement of its space.




The design includes an independent pavilion structure and a setback from the eastern wall of the risalit and the northern façade. The connection between the two buildings is achieved through one of the arcade blende, which does not interfere with the perception of the façade. For the pavilion, a modular furniture system has been designed for both indoor and outdoor use.
Located in such close proximity to the Orangerie building, the designed pavilion, through its transparency, does not obstruct the view of the historic northern façade, preserving its visibility. The pavilion serves as a connector between the garden and the Orangerie, blurring the boundary between interior and exterior. Its form references garden architecture. The compositional grid and height of the pavilion derive from the geometry of the Orangerie building its façade continuity and plan. The arch forming the northern arcade has been spatially developed. By rotating it around its vertical axis of symmetry, sculptural forms were created, which serve a structural function as they support the ceiling. This design ensures an open character for the pavilion’s interior, allowing for fluid communication and flexible arrangement of its space.













































The Orangerie
Year
2022
2022
Location
Warsaw
Creator
Magda Burdajewicz
Marta Drgas
Mikołaj Gruszczyński
Jakub Wichtowski
Jan Zieliński
Images
Jakub Wichtowski
Tools
Archicad
Rhino
Twinmotion
Adobe CC
All projects are created with joy and love by Jakub and his friends. These emotions are integral to human-made works. Copying or using these projects without the author’s permission is strictly PROHIBITED and constitutes a LEGAL VIOLATION. Additionally, DO NOT USE this content to train AI models or for unauthorized human model training.
Publications
All projects are created with joy and love by Jakub and his friends. These emotions are integral to human-made works. Copying or using these projects without the author’s permission is strictly PROHIBITED and constitutes a LEGAL VIOLATION. Additionally, DO NOT USE this content to train AI models or for unauthorized human model training.
All projects are created with joy and love by Jakub and his friends. These emotions are integral to human-made works. Copying or using these projects without the author’s permission is strictly PROHIBITED and constitutes a LEGAL VIOLATION. Additionally, DO NOT USE this content to train AI models or for unauthorized human model training.
As a side note: I don't collect any date about you ; )